Villa a schiera d'angolo in vendita

Tortoreto, Via tasso - Tortoreto Lido
€ 319.000
5 locali 5 locali
180 Mq 180 Mq
3 bagni 3 bagni

Villa a schiera d'angolo in vendita

Tortoreto, Via tasso - Tortoreto Lido

Descrizione annuncio

Per acquistare questo immobile devi vendere il tuo? Chiamaci per una valutazione gratuita.

Tortoreto Lido: a soli 80 mt dal mare, in posizione molto privilegiata rispetto al mare e ai maggiori servizi, proponiamo in vendita villetta a schiera di testa su più livelli.

La casa si compone di uno spazio esterno quasi interamente pavimentato di oltre 80 mq con accesso pedonale e carrabile, una doccia esterna, una casetta porta oggetti e una tettoia in legno molto comoda durante le calde giornate estive.

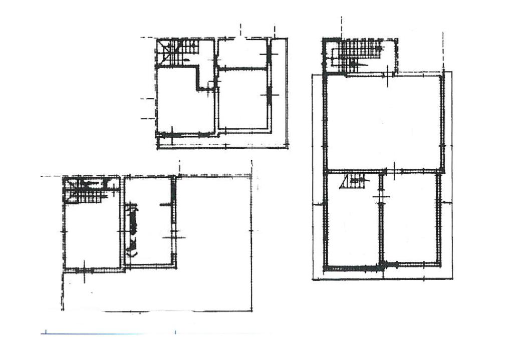
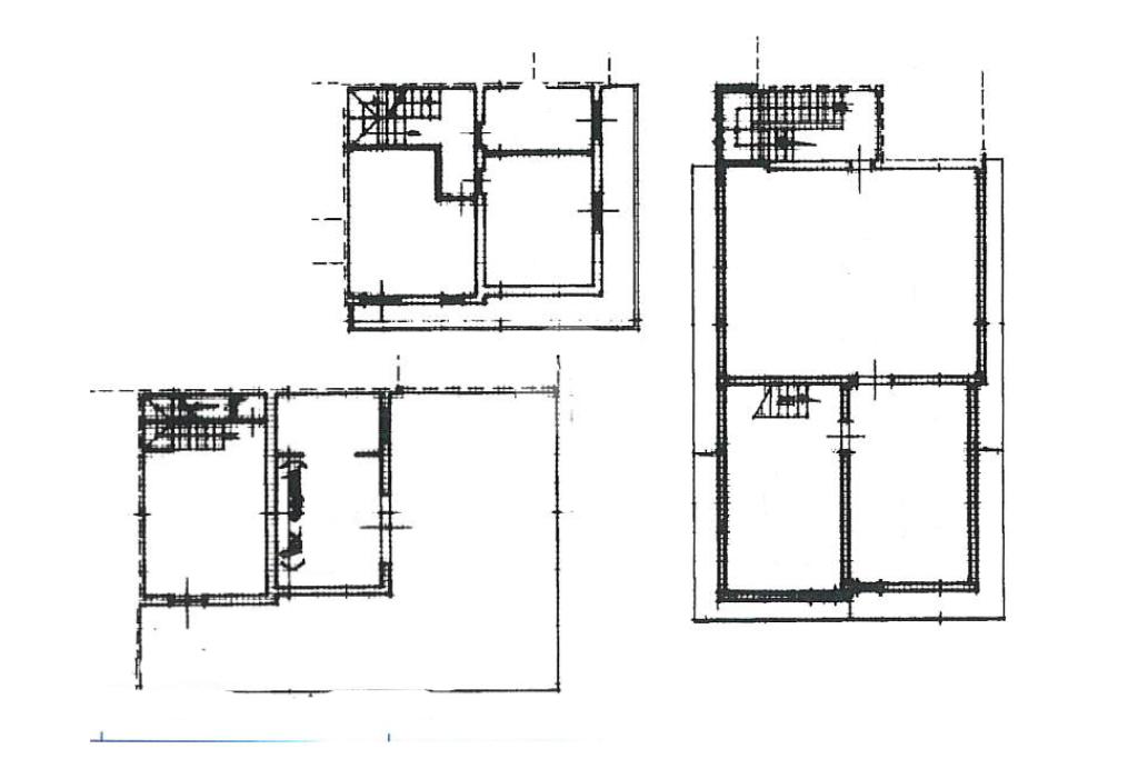
Al suo interno l'abitazione si compone al piano terra di una zona soggiorno con angolo cottura, zona pranzo, area salotto e primo bagnetto di servizio con ripostiglio annesso.

La scalinata conduce al primo livello dove trovano spazio due camere matrimoniali molto grandi con affaccio sul balconcino VISTA MARE e un bagno dalle dimensioni molto generose con doccia e finestra.

Il secondo e ultimo livello si compone di due stanze anch'esse molto spaziose con comodi ripostigli sottotetto e zone da adibire a cabina armadio. Completa il piano un bagno finestrato con doccia.

Termoautonoma e con aria condizionata.

La casa è perfetta per una famiglia numerosa che desidera tanto spazio interno e esterno da vivere tutto l'anno o come casa vacanze vista la sua posizione molto privilegiata rispetto ai maggiori servizi e alla spiaggia.

Seguiteci su Facebook Agenzia Tecnorete Tortoreto, su instagram tecnorete tortoreto e sul nostro canale YouTube tecnorete tortoreto.

Contattateci per fissare una visita gratuita.

Mostra tutto

Nelle vicinanze

Trasporto pubblico Trasporto pubblico
Tortoreto Lido
Tortoreto Lido
1,0 Km
Scuole Scuole
Scuole
1,0 Km
Scuola dell’infanzia
1,2 Km
Supermercati Supermercati
Conad
560 m
Lidl
1,4 Km
Punto
2,6 Km
Bar Bar
Pane & Caffè
2,2 Km
Ristoranti Ristoranti
Chalet Murena
600 m
Playa Sirena
910 m
Miramare
1,5 Km
Copacabana
2,2 Km
Pizzeria L'Antico Portone
2,5 Km
Mostra tutto

Caratteristiche

Rif.:
61160090
Piano:
Su più livelli di 3
Totale piani:
3
Posti auto:
1
Balconi:
1
Camere da letto:
4
Mostra tutto
Prezzo Prezzo
€ 319.000
Rata mutuo Rata mutuo
€ 1.515 / mese
Spese annue Spese annue
€ 0
Proponi il tuo prezzoProponi il tuo prezzo
Immobile valutato con T·Valuta

Classe Energetica

G
G
G
G
G
G
G
G
G
EP globale non rinnovabile:
160.00 kW h/m² anno
EP globale rinnovabile:
160.00 kW h/m² anno
EP invernale del fabbricato:
EP estiva del fabbricato:
Anno di costruzione:
2000
Riscaldamento:
Autonomo
Tipo impianto:
A radiatori
Tipo alimentazione:
Metano

Ti interessa visionare l'immobile?

Fissa un appuntamento  Fissa un appuntamento

Richiedi informazioni

Clicca su Leggi per aprire l'informativa
* Questi campi sono obbligatori

Calcola il tuo mutuo

Semplice e senza impegno
Anticipo

( % )
Mutuo

( % )

pochi semplici passi

inserisci i tuoi dati
Questionario completato
Grazie per aver richiesto un appuntamento senza impegno con un nostro Consulente del Credito e Assicurativo.

Hai inserito correttamente tutti i dati necessari e a breve riceverai una e-mail con un link da convalidare per inviare i tuoi dati.
Affiliato
Studio Tortoreto 1 Srl
Via Nazionale Adriatica, 152 64018 Tortoreto (TE)

Il nostro staff


  • Mario Cococcia
    Affiliato

  • Giancarlo Carli
    Affiliato

  • Thomas Bandini
    Responsabile

  • Giada Giansante
    Collaboratrice

  • Alex Gramaccini
    Collaboratore

  • Monia Montini
    Coordinatrice

  • Daniel Morè
    Responsabile

  • Giulio Giacomo Boris Papini
    Collaboratore
Via Nazionale Adriatica, 152 64018 Tortoreto (TE)
Zona: Tortoreto
Mostra su mappa
Orari: Dal lunedì al sabato 09:00 - 13:00 e 15:00 - 19:30.
Affiliato
Studio Tortoreto 1 Srl
Via Nazionale Adriatica, 152 64018 Tortoreto (TE)

2026 Tecnocasa Franchising S.p.A. - P. IVA 08365160152 - Via Monte Bianco 60/A 20089 Rozzano (MI). Ogni agenzia ha un proprio titolare ed è autonoma. Privacy policy | Policy utilizzo | Cookie policy