Villa a schiera in vendita

Tortoreto, Via Vascello - Tortoreto Lido
€ 139.000
3 locali 3 locali
90 Mq 90 Mq
2 bagni 2 bagni

Villa a schiera in vendita

Tortoreto, Via Vascello - Tortoreto Lido

Descrizione annuncio

Per acquistare questo immobile devi vendere il tuo? Chiamaci per una valutazione gratuita.

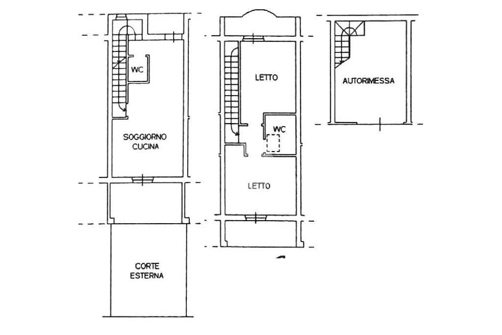
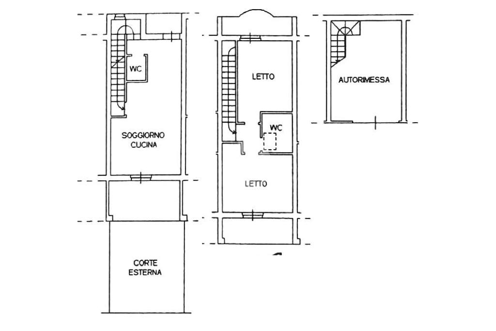
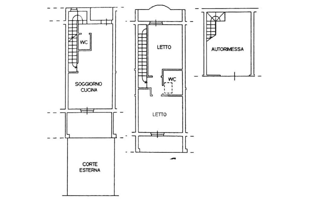
Tortoreto: in prima collina, in grazioso complesso VISTA MARE con piscina condominiale, proponiamo in vendita villetta a schiera su tre livelli.

L'abitazione è cosi composta:

PIANO TERRA: ingresso, soggiorno con angolo cottura, giardino pavimentato con angolo lavanderia e bagno.

PRIMO PIANO:una scalinata conduce a livello superiore dove troviamo una camera matrimoniale con balconcino vista mare, una seconda camera doppia anch'essa con spazio esterno con affaccio sul mare e sulla piscina e bagno finestrato con vasca.

Il piano seminterrato,invece, comprende un bel garage pavimentato per posteggiare la macchina, ma utilizzabile anche come comodo ripostiglio.

La casa è ottima per chi sta cercando una soluzione da mettere a reddito durante la stagione estiva vista la presenza della piscina e la comodità per raggiungere il mare.

Tuttavia l'abitazione è ideale anche per una giovane coppia che vuole trasferirsi visto che il complesso è parzialmente abitato tutto l'anno.

Seguiteci su Facebook Agenzia Tecnorete Tortoreto, su instagram tecnorete tortoreto e sul nostro canale YouTube tecnorete tortoreto.

Contattateci per fissare una visita gratuita.

Mostra tutto

Nelle vicinanze

Trasporto pubblico Trasporto pubblico
Tortoreto Lido
Tortoreto Lido
1,0 Km
stazione di Alba Adriatica-Nereto-Controguerra
stazione di Alba Adriatica-Nereto-Controguerra
2,8 Km
Alba Adriatica, Piazza del Popolo
Alba Adriatica, Piazza del Popolo
2,5 Km
Ricariche auto elettriche Ricariche auto elettriche
Carsoli Colonna | BeCharge
1,8 Km
Hotel Medigarden Resort
2,6 Km
Scuole Scuole
Scuola dell’infanzia
860 m
Scuole
990 m
Scuola Materna Comunale
2,4 Km
Scuola Primaria Fabio Filzi
2,6 Km
Scuola Primaria Enrico Fermi
2,6 Km
Farmacia Farmacia
Farmacia
2,7 Km
Supermercati Supermercati
Lidl
570 m
Conad
630 m
Punto
1,1 Km
Supermercato Si
1,6 Km
Bar Bar
Pane & Caffè
390 m
Perché no
2,2 Km
Kaffeina
2,3 Km
Ristoranti Ristoranti
Miramare
700 m
Copacabana
1,1 Km
Pizzeria L'Antico Portone
1,3 Km
Chalet Murena
1,5 Km
Al Faro
1,8 Km
Mostra tutto

Caratteristiche

Rif.:
61149119
Piano:
Su più livelli di 2
Totale piani:
2
Box:
1
Terrazzi:
2
Camere da letto:
2
Mostra tutto
Prezzo Prezzo
€ 139.000
Rata mutuo Rata mutuo
€ 655 / mese
Spese annue Spese annue
€ 600
Proponi il tuo prezzoProponi il tuo prezzo
Immobile valutato con T·Valuta

Classe Energetica

C
C
C
C
C
C
C
C
C
EP globale non rinnovabile:
70.00 kW h/m² anno
EP globale rinnovabile:
70.00 kW h/m² anno
EP invernale del fabbricato:
EP estiva del fabbricato:
Anno di costruzione:
2014
Riscaldamento:
Autonomo
Tipo impianto:
A radiatori
Tipo alimentazione:
Metano

Ti interessa visionare l'immobile?

Fissa un appuntamento  Fissa un appuntamento

Richiedi informazioni

Clicca su Leggi per aprire l'informativa
* Questi campi sono obbligatori

Calcola il tuo mutuo

Semplice e senza impegno
Anticipo

( % )
Mutuo

( % )

pochi semplici passi

inserisci i tuoi dati
Questionario completato
Grazie per aver richiesto un appuntamento senza impegno con un nostro Consulente del Credito e Assicurativo.

Hai inserito correttamente tutti i dati necessari e a breve riceverai una e-mail con un link da convalidare per inviare i tuoi dati.
Affiliato
Studio Tortoreto 1 Srl
Via Nazionale Adriatica, 152 64018 Tortoreto (TE)

Il nostro staff


  • Mario Cococcia
    Affiliato

  • Giancarlo Carli
    Affiliato

  • Thomas Bandini
    Responsabile

  • Giada Giansante
    Collaboratrice

  • Alex Gramaccini
    Collaboratore

  • Monia Montini
    Coordinatrice

  • Daniel Morè
    Responsabile

  • Giulio Giacomo Boris Papini
    Collaboratore
Via Nazionale Adriatica, 152 64018 Tortoreto (TE)
Zona: Tortoreto
Mostra su mappa
Orari: Dal lunedì al sabato 09:00 - 13:00 e 15:00 - 19:30.
Affiliato
Studio Tortoreto 1 Srl
Via Nazionale Adriatica, 152 64018 Tortoreto (TE)

2026 Tecnocasa Franchising S.p.A. - P. IVA 08365160152 - Via Monte Bianco 60/A 20089 Rozzano (MI). Ogni agenzia ha un proprio titolare ed è autonoma. Privacy policy | Policy utilizzo | Cookie policy