Casa indipendente in vendita

Tortoreto, Via Roma - Tortoreto Lido
€ 439.000
6 locali 6 locali
231 Mq 231 Mq
2 bagni 2 bagni

Casa indipendente in vendita

Tortoreto, Via Roma - Tortoreto Lido

Descrizione annuncio

Per acquistare questo immobile devi vendere il tuo? Chiamaci per una valutazione gratuita.

Tortoreto Lido: nei pressi di Viale Trieste, a soli 500 mt dal mare, proponiamo in vendita casa indipendente cielo terra.

L'abitazione si compone di due piani fuori terra oltre ad una soffitta abidita ad appartamento ed è cosi composta:

PIANO TERRA: appartamento di circa 75 mq composto da soggiorno molto spazioso e luminoso con cucina a vista, due camere matrimoniali e un bagno con finestra. Spazio esterno per un'autovettura, garage a livello strada di circa 23 mq e un locale pluriuso collocato nel retro dell'abitazione.

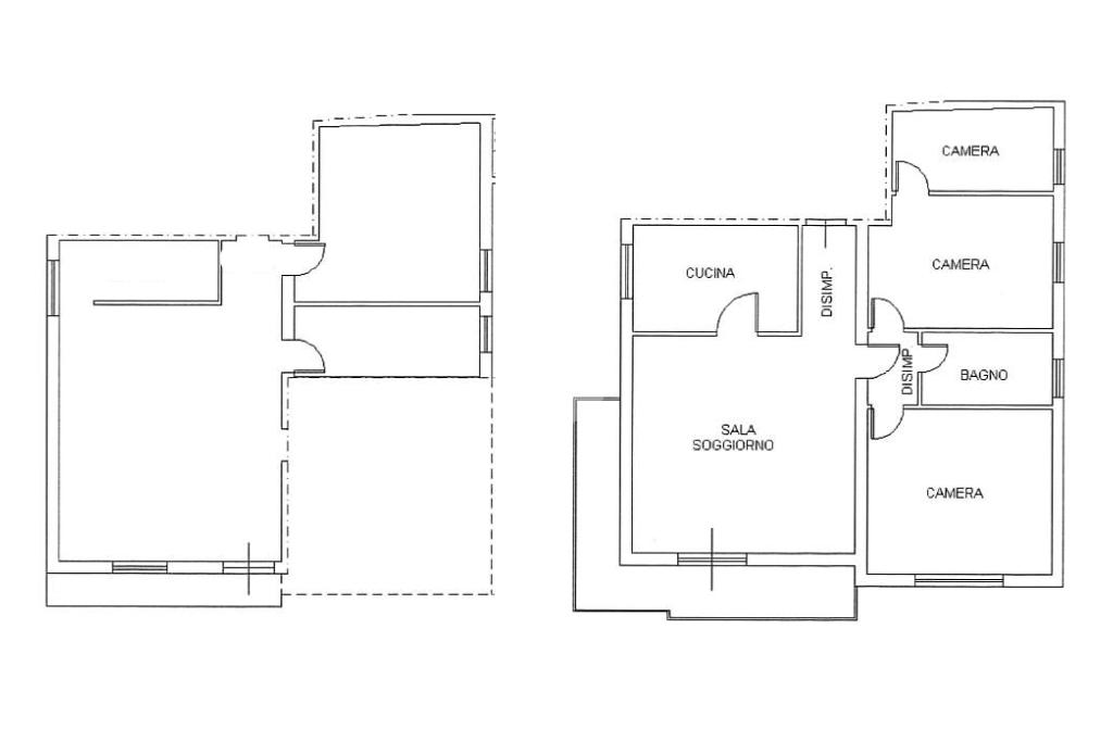
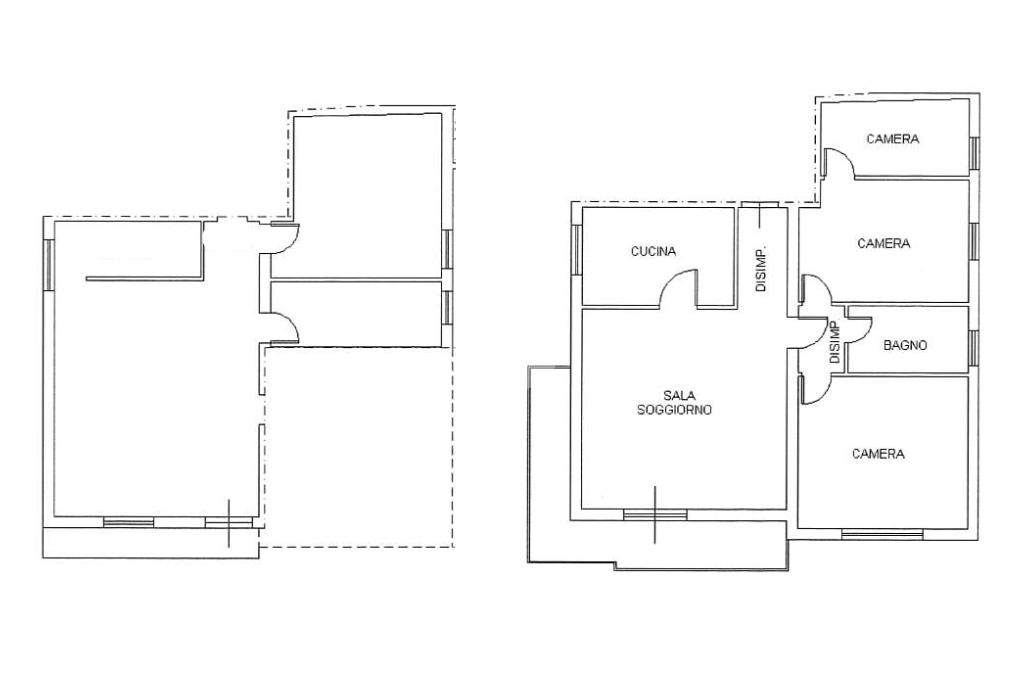
PRIMO PIANO: appartamento di 90 mq con salone con cucina abitabile, terrazzo vista strada principale, tre camere da letto e un bagno.

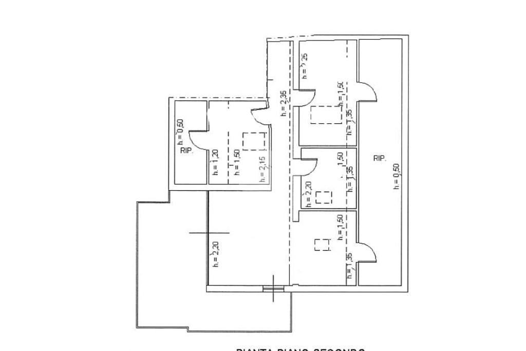
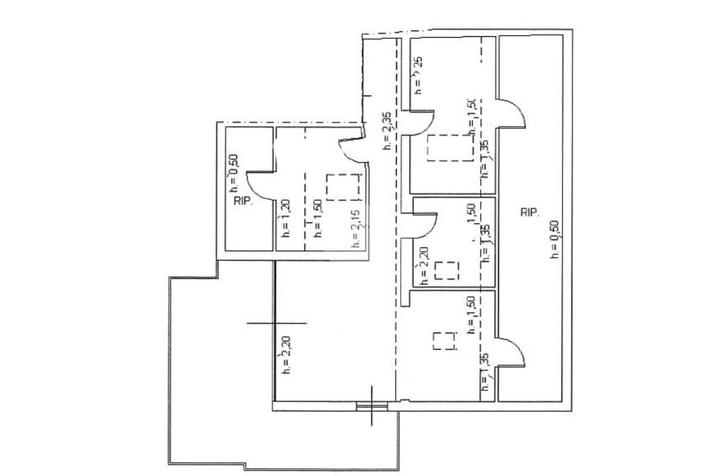
SOFFITTA, di 66 mq adibito ad appartamento con soggiorno, due camere da letto, bagno e terrazzo coperto di 17 mq.

L'abitazione si presenta in ottime condizioni interne ed esterne con tetto in cemento armato rifatto alla fine degli anni 90, pozzo artesiano, solare termico e fotovoltaico installato nel 2017.

Termoautonomo, aria condizionata, cisterna con riserva idrica di 30 quintali, infissi in legno doppio vetro, 2 caldaie e contattori della luce e del gas separati. Contatore dell' acqua unico.

La casa è ideale anche per due nuclei famigliari separati avendo l'indipendenza in ambo gli appartamenti e si presenta come una soluzione unica nel suo genere in una zona residenziale dove trovare un'abitazione non sempre risulta facile.

Seguiiteci su Facebook Agenzia Tecnorete Tortoreto, su instagram tecnorete tortoreto e sul nostro canale Youtube tecnorete tortoreto.

Contattateci per fissare una visita gratuita.

Mostra tutto

Nelle vicinanze

Trasporto pubblico Trasporto pubblico
Tortoreto Lido
Tortoreto Lido
250 m
Ricariche auto elettriche Ricariche auto elettriche
Carsoli Colonna | BeCharge
2,7 Km
Scuole Scuole
Scuole
220 m
Scuola dell’infanzia
380 m
Supermercati Supermercati
Conad
370 m
Lidl
490 m
Punto
1,8 Km
Supermercato Si
2,5 Km
Bar Bar
Pane & Caffè
1,3 Km
Ristoranti Ristoranti
Chalet Murena
560 m
Miramare
650 m
Copacabana
1,5 Km
Playa Sirena
1,8 Km
Pizzeria L'Antico Portone
1,8 Km
Mostra tutto

Caratteristiche

Rif.:
61162610
Piano:
Su più livelli di 2
Totale piani:
2
Box:
1
Posti auto:
1
Balconi:
1
Mostra tutto
Prezzo Prezzo
€ 439.000
Rata mutuo Rata mutuo
€ 2.086 / mese
Spese annue Spese annue
€ 0
Proponi il tuo prezzoProponi il tuo prezzo
Immobile valutato con T·Valuta

Classe Energetica

F
F
F
F
F
F
F
F
F
EP globale non rinnovabile:
140.00 kW h/m² anno
EP globale rinnovabile:
140.00 kW h/m² anno
EP invernale del fabbricato:
EP estiva del fabbricato:
Anno di costruzione:
1970
Riscaldamento:
Autonomo
Tipo impianto:
A radiatori
Tipo alimentazione:
Metano

Ti interessa visionare l'immobile?

Fissa un appuntamento  Fissa un appuntamento

Richiedi informazioni

Clicca su Leggi per aprire l'informativa
* Questi campi sono obbligatori

Calcola il tuo mutuo

Semplice e senza impegno
Anticipo

( % )
Mutuo

( % )

pochi semplici passi

inserisci i tuoi dati
Questionario completato
Grazie per aver richiesto un appuntamento senza impegno con un nostro Consulente del Credito e Assicurativo.

Hai inserito correttamente tutti i dati necessari e a breve riceverai una e-mail con un link da convalidare per inviare i tuoi dati.
Affiliato
Studio Tortoreto 1 Srl
Via Nazionale Adriatica, 152 64018 Tortoreto (TE)

Il nostro staff


  • Mario Cococcia
    Affiliato

  • Giancarlo Carli
    Affiliato

  • Thomas Bandini
    Responsabile

  • Giada Giansante
    Collaboratrice

  • Alex Gramaccini
    Collaboratore

  • Monia Montini
    Coordinatrice

  • Daniel Morè
    Responsabile

  • Giulio Giacomo Boris Papini
    Collaboratore
Via Nazionale Adriatica, 152 64018 Tortoreto (TE)
Zona: Tortoreto
Mostra su mappa
Orari: Dal lunedì al sabato 09:00 - 13:00 e 15:00 - 19:30.
Affiliato
Studio Tortoreto 1 Srl
Via Nazionale Adriatica, 152 64018 Tortoreto (TE)

2026 Tecnocasa Franchising S.p.A. - P. IVA 08365160152 - Via Monte Bianco 60/A 20089 Rozzano (MI). Ogni agenzia ha un proprio titolare ed è autonoma. Privacy policy | Policy utilizzo | Cookie policy