Trilocale in vendita

Tortoreto, Via Spataro Ovest - Tortoreto Lido
€ 209.000
3 locali 3 locali
80 Mq 80 Mq
2 bagni 2 bagni

Trilocale in vendita

Tortoreto, Via Spataro Ovest - Tortoreto Lido

Descrizione annuncio

Per acquistare questo immobile devi vendere il tuo? Chiamaci per una valutazione gratuita.

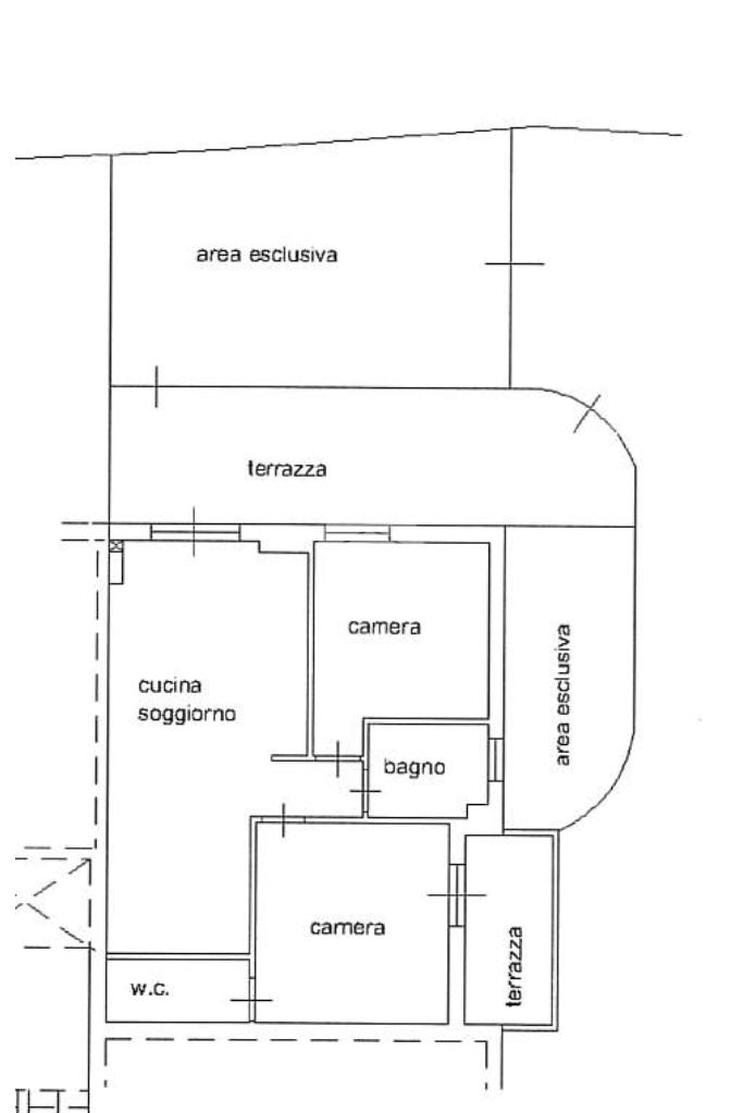
Tortoreto Lido: a soli 300 mt dal mare, in palazzina realizzata nel 2008, proponiamo in vendita appartamento al piano terra rialzato con ingresso indipendente.

L'abitazione è stata acquistata allo stato grezzo nel 2017 e ultimata completamente nel 2018 quindi si presenta pari al nuovo con una triplice esposizione sud-est-ovest.

La casa è cosi composta: ingresso sul soggiorno con cucina componibile, disimpegno, due camere doppie di cui una con bagno ensuite e balconcino e un secondo bagno con doccia e finestra.

Lo spazio esterno è rappresentato da un bel terrazzo di circa 25 mq interamente coperto e attrezzato con tende da sole, comodissimo da ultilizzare durante la stagione estiva. Antistante all'ingresso della casa trovano spazio due posti auto scoperti, ma recintati.

Infissi in alluminio doppio vetro con persiane, zanzariere, termosifoni, condizionatori, portone blindato e sistema di allarme permitrale e volumetrico.

I punti di forza dell'abitazione sono: la posizione, l'indipendenza dal condominio ( che ammonta a circa 25€ al mese), i due posti auto, fondamentali in quella zona e lo stato conservativo interno della casa.

Ideale come comoda casa vacanza, dove il secondo bagno rappresenta il valore aggiunto dell'immobile.

Seguiteci su Facebook Agenzia Tecnorete Tortoreto su instagram tecnorete tortoreto e sul nostro canale Youtube tecnorete tortoreto.

Contattateci per fissare una visita gratuita.

Mostra tutto

Nelle vicinanze

Trasporto pubblico Trasporto pubblico
Tortoreto Lido
Tortoreto Lido
1,5 Km
Scuole Scuole
Scuole
1,5 Km
Scuola dell’infanzia
1,7 Km
Supermercati Supermercati
Conad
1,0 Km
Lidl
1,8 Km
Bar Bar
Pane & Caffè
2,6 Km
Ristoranti Ristoranti
Playa Sirena
490 m
Chalet Murena
1,1 Km
Miramare
1,8 Km
Pizzeria L'Antico Portone
2,7 Km
Copacabana
2,7 Km
Mostra tutto

Caratteristiche

Rif.:
61198031
Piano:
Terra di 3 con ascensore
Totale piani:
3
Posti auto:
2
Balconi:
1
Terrazzi:
1
Mostra tutto
Prezzo Prezzo
€ 209.000
Rata mutuo Rata mutuo
€ 993 / mese
Spese annue Spese annue
€ 300
Proponi il tuo prezzoProponi il tuo prezzo
Immobile valutato con T·Valuta

Classe Energetica

C
C
C
C
C
C
C
C
C
EP globale non rinnovabile:
70.00 kW h/m² anno
EP globale rinnovabile:
70.00 kW h/m² anno
EP invernale del fabbricato:
EP estiva del fabbricato:
Anno di costruzione:
2009
Riscaldamento:
Autonomo
Tipo impianto:
A radiatori
Tipo alimentazione:
Metano

Ti interessa visionare l'immobile?

Fissa un appuntamento  Fissa un appuntamento

Richiedi informazioni

Clicca su Leggi per aprire l'informativa
* Questi campi sono obbligatori

Calcola il tuo mutuo

Semplice e senza impegno
Anticipo

( % )
Mutuo

( % )

pochi semplici passi

inserisci i tuoi dati
Questionario completato
Grazie per aver richiesto un appuntamento senza impegno con un nostro Consulente del Credito e Assicurativo.

Hai inserito correttamente tutti i dati necessari e a breve riceverai una e-mail con un link da convalidare per inviare i tuoi dati.
Affiliato
Studio Tortoreto 1 Srl
Via Nazionale Adriatica, 152 64018 Tortoreto (TE)

Il nostro staff


  • Mario Cococcia
    Affiliato

  • Giancarlo Carli
    Affiliato

  • Thomas Bandini
    Responsabile

  • Giada Giansante
    Collaboratrice

  • Alex Gramaccini
    Collaboratore

  • Monia Montini
    Coordinatrice

  • Daniel Morè
    Responsabile

  • Giulio Giacomo Boris Papini
    Collaboratore
Via Nazionale Adriatica, 152 64018 Tortoreto (TE)
Zona: Tortoreto
Mostra su mappa
Orari: Dal lunedì al sabato 09:00 - 13:00 e 15:00 - 19:30.
Affiliato
Studio Tortoreto 1 Srl
Via Nazionale Adriatica, 152 64018 Tortoreto (TE)

2026 Tecnocasa Franchising S.p.A. - P. IVA 08365160152 - Via Monte Bianco 60/A 20089 Rozzano (MI). Ogni agenzia ha un proprio titolare ed è autonoma. Privacy policy | Policy utilizzo | Cookie policy