Trilocale in vendita

Tortoreto, Via trieste - Tortoreto Lido
€ 179.000
3 locali 3 locali
62 Mq 62 Mq
1 bagno 1 bagno

Trilocale in vendita

Tortoreto, Via trieste - Tortoreto Lido

Descrizione annuncio

Per acquistare questo immobile devi vendere il tuo? Chiamaci per una valutazione gratuita.

Tortoreto: in VIALE TRIESTE, in pieno centro cittadino e a soli 80 mt dal mare, proponiamo in vendita appartamento al terzo piano servito da ascensore.

Lo stabile è stato realizzato alla fine degli anni 70 e l'appartamento al suo interno recessita di ristrutturazione.

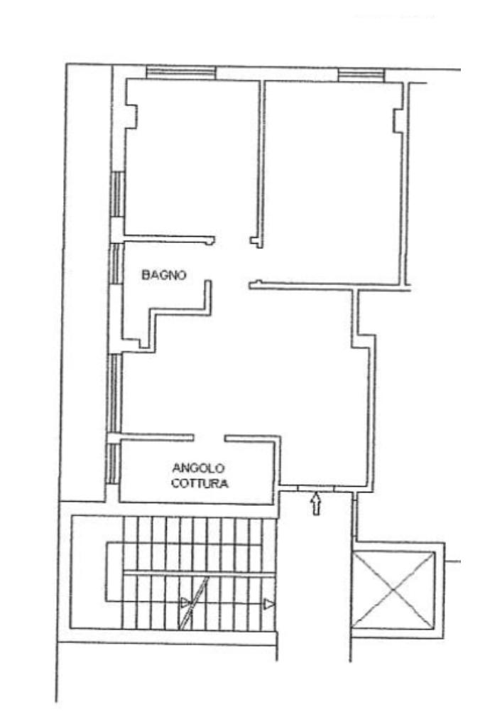
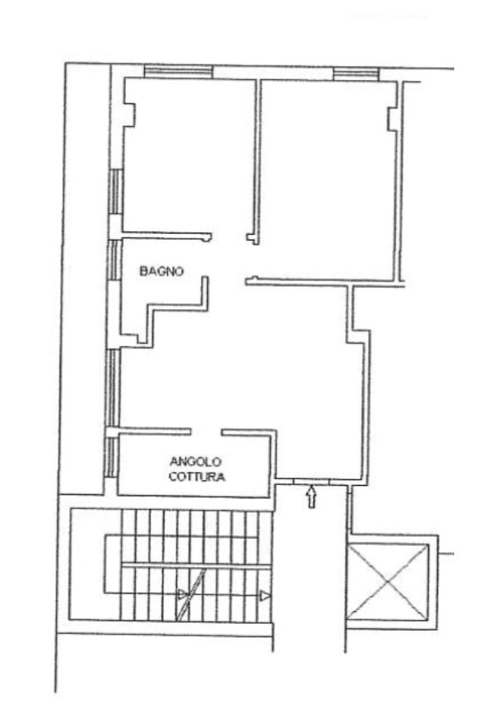
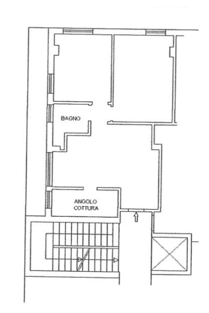
L'immobile è cosi composto: soggiorno con angolo cottura separato, balcone esposto a sud dove si intravede uno spicchio di mare, disimpegno, due camere matrimoniali e un bagno con vasca e finestra.

Gli impianti e le finiture sono dell'anno di costruzione, ma grazie alla comoda metratura interna, alle due stanze doppie e al bagno che dispone di una grande vasca è possibile realizzare un comodissimo appartamento vacanze.

I punti di forza dell'immobile sono la posizione davvero invidiabile rispetto al mare e a tutti i servizi sotto casa, l'affaccio dello spazio esterno privato e silenzioso in quanto guarda su una stradina interna e il valore aggiunto del garage, sito in viale de gasperi, un paio di straverse verso ovest che è compreso nel prezzo d'acquisto.

Questa soluzione rappresenta davvero un buon compromesso tra posizione e abitazione e si presta come molto funzionale per essere utilizzata durante il periodo estivo e perchè no anche tutto l'anno.

Seguiteci su Facebook Agenzia Tecnorete Tortoreto, su instagram tecnorete tortoreto e sul nostro canale YouTube tecnorete tortoreto.

Contattateci per fissare una visita senza impegno.

Mostra tutto

Nelle vicinanze

Trasporto pubblico Trasporto pubblico
Tortoreto Lido
Tortoreto Lido
300 m
Ricariche auto elettriche Ricariche auto elettriche
Carsoli Colonna | BeCharge
2,9 Km
Scuole Scuole
Scuole
340 m
Scuola dell’infanzia
500 m
Supermercati Supermercati
Conad
170 m
Lidl
760 m
Punto
1,9 Km
Supermercato Si
2,7 Km
Bar Bar
Pane & Caffè
1,5 Km
Ristoranti Ristoranti
Chalet Murena
230 m
Miramare
980 m
Copacabana
1,5 Km
Playa Sirena
1,6 Km
Pizzeria L'Antico Portone
2,2 Km
Mostra tutto

Caratteristiche

Rif.:
61193570
Piano:
3 di 4 con ascensore (Piano alto)
Box:
1
Balconi:
1
Camere da letto:
2
Arredamento:
Parziale
Mostra tutto
Prezzo Prezzo
€ 179.000
Rata mutuo Rata mutuo
€ 850 / mese
Spese annue Spese annue
€ 500
Proponi il tuo prezzoProponi il tuo prezzo
Immobile valutato con T·Valuta

Classe Energetica

G
G
G
G
G
G
G
G
G
EP globale non rinnovabile:
160.00 kW h/m² anno
EP globale rinnovabile:
160.00 kW h/m² anno
EP invernale del fabbricato:
EP estiva del fabbricato:
Anno di costruzione:
1975
Riscaldamento:
Autonomo
Tipo impianto:
A radiatori
Tipo alimentazione:
Metano

Ti interessa visionare l'immobile?

Fissa un appuntamento  Fissa un appuntamento

Richiedi informazioni

Clicca su Leggi per aprire l'informativa
* Questi campi sono obbligatori

Calcola il tuo mutuo

Semplice e senza impegno
Anticipo

( % )
Mutuo

( % )

pochi semplici passi

inserisci i tuoi dati
Questionario completato
Grazie per aver richiesto un appuntamento senza impegno con un nostro Consulente del Credito e Assicurativo.

Hai inserito correttamente tutti i dati necessari e a breve riceverai una e-mail con un link da convalidare per inviare i tuoi dati.
Affiliato
Studio Tortoreto 1 Srl
Via Nazionale Adriatica, 152 64018 Tortoreto (TE)

Il nostro staff


  • Mario Cococcia
    Affiliato

  • Giancarlo Carli
    Affiliato

  • Thomas Bandini
    Responsabile

  • Giada Giansante
    Collaboratrice

  • Alex Gramaccini
    Collaboratore

  • Monia Montini
    Coordinatrice

  • Daniel Morè
    Responsabile

  • Giulio Giacomo Boris Papini
    Collaboratore
Via Nazionale Adriatica, 152 64018 Tortoreto (TE)
Zona: Tortoreto
Mostra su mappa
Orari: Dal lunedì al sabato 09:00 - 13:00 e 15:00 - 19:30.
Affiliato
Studio Tortoreto 1 Srl
Via Nazionale Adriatica, 152 64018 Tortoreto (TE)

2026 Tecnocasa Franchising S.p.A. - P. IVA 08365160152 - Via Monte Bianco 60/A 20089 Rozzano (MI). Ogni agenzia ha un proprio titolare ed è autonoma. Privacy policy | Policy utilizzo | Cookie policy